HOME
NIEUWBOUW
TEKENWERK
FACILITAIR TEKENWERK
VERBOUW
3D bimX VIEWER
PROJECTEN
Nieuwbouw woonhuis Berkel-Enschot (Tilburg)
Woonhuis te Deurne
Bedrijfsruimte te Gemert
Ontwerp woonhuis Deurne
Bed en breakfast Milheeze
Gemeentehuis Hunsel
Woonboerderij te Gemert
Aanbouw woonhuis Bakel
Verduurzamen appartementen
Over ADD-2
Contact
Privacyverklaring
Algemene voorwaarden
nieuwbouw
Knop
B&B
Foto door: John Doe
Knop
Bedrijfsruimte
Knop
Herbestemmen
Foto door: John Doe
Knop
Button
contacit@ADD-2.nl
+31 (0) 6 303 65 889
PROJECTEN
Projecten
Verbouw
Nieuwbouw
Verduurzamen
TEKENWERK
Bouwkundig tekenwerk
Facilitair tekenwerk
DIENSTEN
3D bimx viewer
Tekenwerk
Over ADD-2
Woonboerderij in Gemert
Een echte Brabantse langgevelboerderij met een geheel eikenhouten constructie. Samengesteld met de modernste houtbewerkingstechnieken.
Een echte woonboerderij met alle moderne gemakken, energiezuinig en duurzaam.
Dit kom allemaal samen in dit project.
Impressie voorzijde
Button
Impressie achterzijde
Button
Impressie houtconstructie
Button
Impressie achterzijde
Button
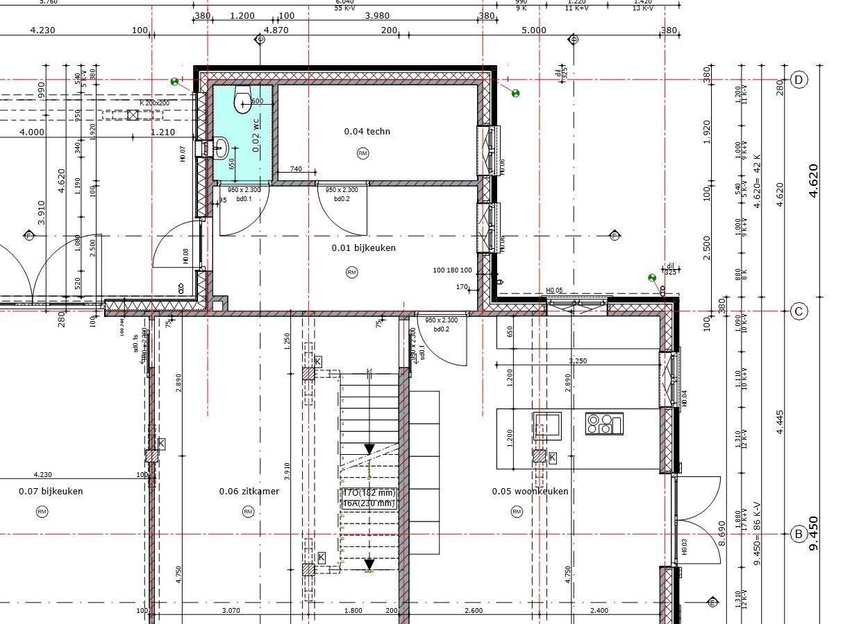
Plattegrond
Button
De imposante houtconstructie
Button
Houtconstructies
Button
Rechtergevel
Button
Impressie achterzijde
Button
Doorsnede
Button
Impressie interieur
Button
Impressie interieur
Button
Impressie interieur
Button
WhatsApp ons
ALLE ONDERST
EUNING VOOR HET BOUWEN
CONTACT
Hagelkruis 2 5761 GR Bakel
06-30365889
contact@ADD-2.nl
BEDRIJF
Privacyverklaring
Algemene voorwaarden
SOCIALS
Share by: